160 Colac Rd, Highton VIC 3216, Australia
For Lease $52,000
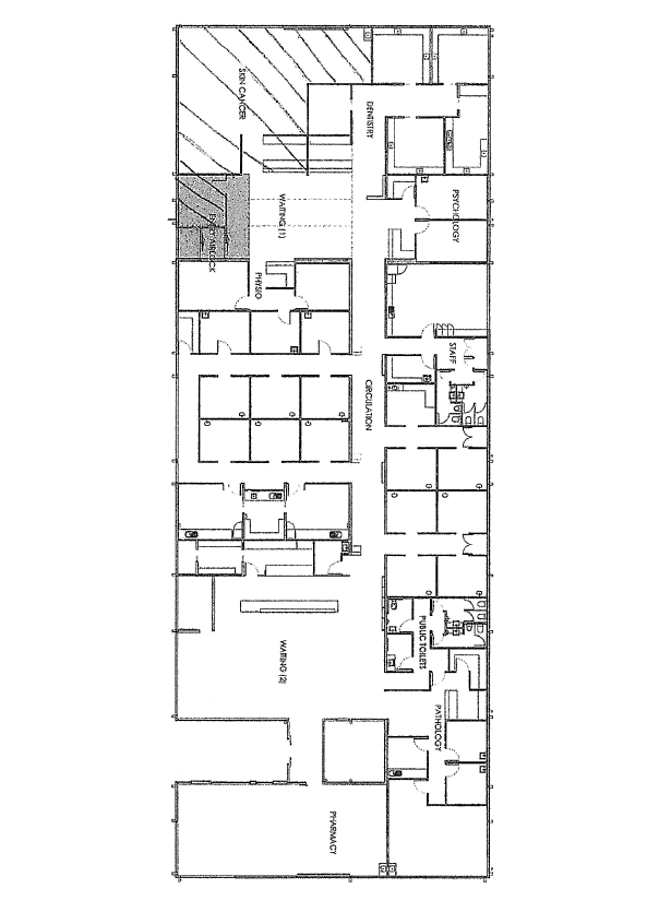
Position your specialist skin clinic in one of Greater Geelong’s most prominent healthcare locations. This fully fitted 119 sqm tenancy is purpose-built to support dermatology, cosmetic medicine, or skin health services, offering a seamless move-in experience.
Clinic Features:
- Purpose-designed layout for a specialist skin clinic
- High-quality fit-out with consulting rooms, reception, and treatment areas
- Located within the well-established MedicalOne Centre
- Strong referral potential from co-located GPs and health professionals
- Ample onsite parking for staff and patients
Prime Location Benefits:
- Situated on Colac Road, a major arterial route with excellent visibility
- Surrounded by retail, dining, and lifestyle amenities
- Easy access to public transport and major roads
- Servicing a growing residential and commercial catchment in Highton and Waurn Ponds
This is a rare opportunity to establish or expand your skin clinic in a thriving medical precinct with built-in demand and professional synergy.
Additional Details
- Tenancy: 119 sqm approx
- Shared Customer Parking: 110 spaces
- Lease term: 3 or 5 years
Property Enquiries
Ben Veenkamp - Commercial Property Manager0400 250 733
[email protected]










